Leírás
Kis méretű, ereszcsatornára szerelhető szűrő és vízlopó, vízgyűjtő szett esővízgyűjtőkhöz
⭐ Magas minőség
❄️ Téliesíthető
Miért különleges? Túlfolyás gátlóval rendelkezik, ami biztosítja, hogy teli tartály esetén a vízlopó ne továbbítsa a tartály felé a vizet, hanem küldje tovább az ereszcsatornába.
Az ereszcsatornába illeszthető szerkezet lehetővé teszi az esővízgyűjtő tartályba az esővíz bevezetését, ezen felül szűrővel is működik.
A szett tartalma
-
Önműködő szűrő és vízlopó szerkezet
- Műanyag csatlakozók
- Rugalmas tömlő (25cm), mellyel a tartályba vezethető a víz:
Tulajdonságok
| Esővízgyűjtő kompatibilitás: | A webshopban található összes esővízgyűjtővel kompatibilis. |
| Eresz kompatibilitás: | 5-6 cm-es ereszcsatornákhoz ajánlott. Az eresznek legalább 1.7cm távolságra kell lennie a faltól, hogy beszerelhető legyen. 50m2, vagy annál kisebb tetőkhöz ajánlott. |
| Tömlő átmérője és hossza: | - |
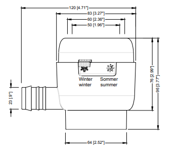
| Termék méret (h x sz x m): | 8 x 8 x 9.5cm |
| Súly: | 0,1 kg |
| További verziók: | Medium és Luxe |
| Kell-e hozzá fúró? | Igen, szükséges hozzá. |
Segítség az összeszereléshez
Az esővíz már tisztítva érkezik
A szerkezet rendelkezik egy beépített szűrővel, ami biztosítja, hogy a tartályba a tető összegyűlt hulladéktól megtisztított víz érkezzen.

Alkalmanként szükséges a szűrő kitisztítása. Ehhez
- lefelé húzva szedd szét a vázat
- vedd ki belőle a leveleket, gallyakat és terméseket
- mosd át a szűrőt betétet és szereld vissza a szerkezetet.

Télen is kényelmesen
A szűrő oldalán található az alábbi kapcsoló, mely által az esővízgyűjtő könnyedén téliesíhető. A téli funkció bekapcsolásával a szerkezet nem továbbítja a tartály felé az esővizet, hanem tovább folyatja az ereszcsatornában.
Így szereld össze lépésről-lépésre:
Nézd meg először a képekhez feltöltött videót.

Fizetés & Biztonság
Fizetési adatait biztonságosan dolgozzuk fel. Nem tárolunk bankkártya adatokat, és nem férünk hozzá a bankkártya információkhoz.











